Fast wie im Wirtshaus

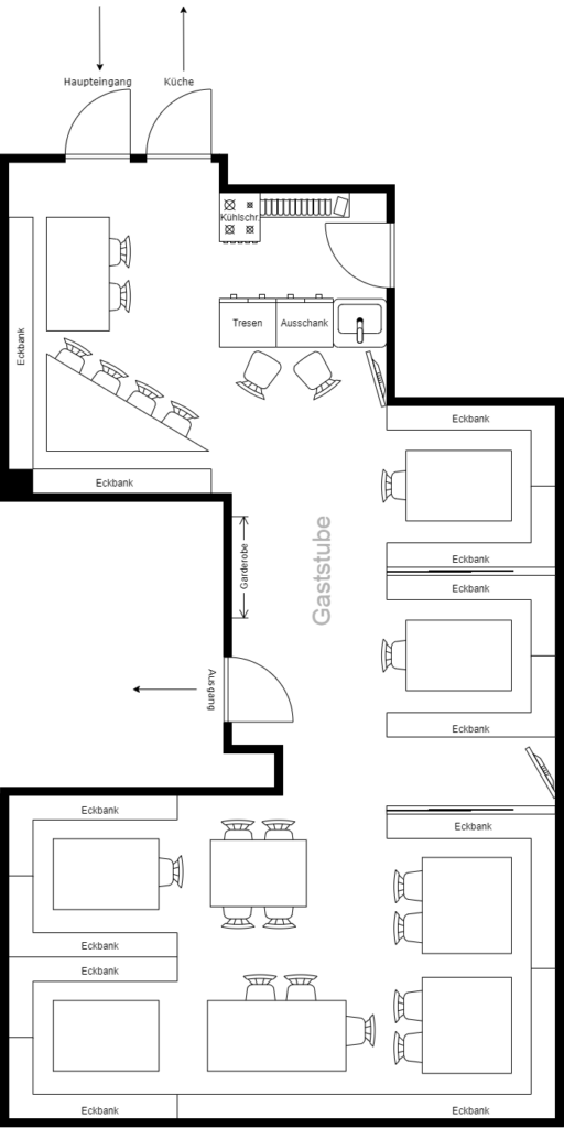
Die Gaststube

Frisch renoviert finden in der Gaststube bis zu 60 Personen Platz. Die „Wirtshaus ähnliche“ Atmosphäre lädt zu Geburtstagsfeiern genauso ein wie zu zünftigen Vereinsveranstaltungen.

Das moderne Multimedia-System mit mehreren Bildschirmen und Sound-Anlage bietet Raum für Vorträge oder Übertragung von Sportveranstaltungen.

Bitte in die Skizze klicken um eine Reservierungsanfrage zu starten
Feiern Sie in privater Runde

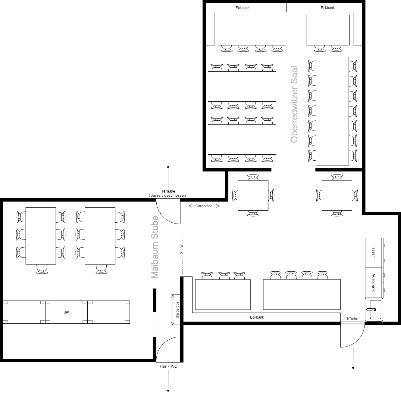
Der Festsaal

Der Festsaal eignet sich hervorragend für größere Feiern bis max. 80 Personen. Er ist aufgeteilt in die kleinere „Maibaum-Stube“ mit Bar und dem größeren „Oberredwitzer Saal„. Im Bereich dazwischen befindet sich Ausschank und Tresen. Eine größere Fläche für flotte Tanzeinlagen steht ebenfalls zur Verfügung.

Wir bitten zu beachten, dass allen Arten von Veranstaltungen unsere Hausordnung zu Grunde liegt.

Bitte in die Skizze klicken um eine Reservierungsanfrage zu starten